
ENTRE PLAINE ET GÂTINE,
HABITER FAYMOREAU AU XXIe SIÈCLE.
Avec V. Rault et L. Duchemin - Concours d’idées - 2012 - Projet mentionné
Comme point de départ à l’élaboration des “corons du XXIe siècle“, il apparaît important de considérer les problèmes que rencontrent aujourd’hui les corons faymoriens, notamment la perte d’une âme collective qui avait tendance à s’implanter dans la rue, lieu de rencontre entre logements et jardins
et qui aujourd’hui se voit perdue, entre autre à cause de l’arrivée de l’automobile. Il s’agit de remettre en avant ces éléments qui en ont fait toute sa qualité et de les adapter à un mode de vie contemporain influencé par une culture locale.
Le projet s’inspire donc de cette architecture sociale faymorienne, mais aussi d’un habitat traditionnel vendéen : la bourrine, architecture rurale en terre, bois et roseaux; mais aussi la ville nouvelle de la Roche-sur-Yon (composée de la maison Gueffier, dernière existante), construite entièrement en pisé au début du XIXe siècle.
L’implantation du site, aux portes du village, entre plaine et gâtine, nous apparaît tout autant comme élément fondateur de projet, où le paysage bocager permet de révéler des vues sur le territoire.
Cette idée se décline ici sous trois séquences qui permettent d’apporter au projet diversité architecturale et paysagère, en proposant à l’usager une série d’évènements qui anime sa manière d’habiter.
Le projet se construit donc en trois séquences transversales reliées entre elles par un axe piéton nord/sud qui parcourt l’ensemble du site.
La première consiste à donner, depuis l’accès nord du site, une place définie à l’automobile, de manière à ce qu’elle ne vienne pas interférer avec la vie sociale des usagers. Cette séquence est composée dans un premier temps d’un parc de stationnement paysager, marquant une distance minimum avec les habitations au nord du site, ainsi qu’une protection solaire naturelle. Dans un second temps, sont implantés les garages/ateliers couverts, qui définissent la limite avec la deuxième séquence et se présentent comme des volumes flexibles dans le temps.
La deuxième séquence prend donc la forme d’une rue, tenue au nord par ces locaux à usages non prédéfinis et au sud par les logements. C’est dans cette interface entre public et privé que nous cherchons à retrouver cette cohésion sociale propre à un mode de vie rural et si présente dans l’histoire du coron.
A cette rue est ajouté un élément programmatique particulier, qui permet d’éviter le schéma souvent rencontré des quartiers d’habitations sans équipements socio-culturels.
Ce bâtiment, situé à la rencontre de l’axe nord/sud et de la rue principale,
s’affirme comme équipement collectif flexible, d’une part en terme de fonctionnalité - du repas d’anniversaire que l’usager n’aura pas la place d’organiser chez lui, à l’espace de jeux d’hiver pour les enfants, ou encore la mise en commun d’une laverie - et d’autre part en terme de temporalité : le rez de chaussée vitré, fermé en hiver, pourra s’ouvrir l’été sur la rue, afin d’y effectuer des événements pour un plus large public (marchés, repas...)
Nous parions sur l’appropriation de ce lieu par les usagers, tout comme ils pourront s’approprier leur logement.
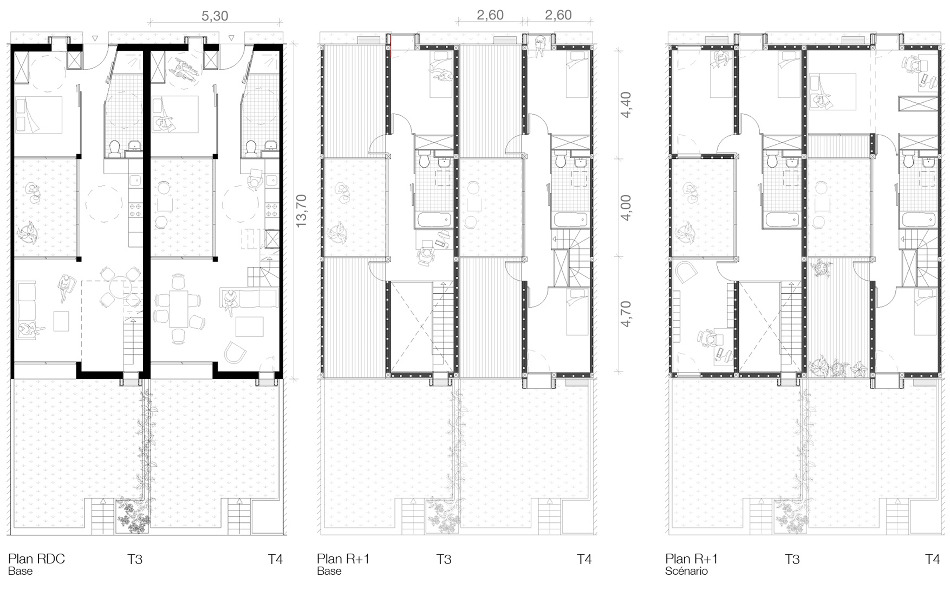
Ces derniers se développent selon deux typologies (T3 et T4) à base similaire. C’est à dire des logements sur deux niveaux, composés autour d’un patio permettant une ventilation et un éclairage naturel pour chaque pièce.
À l’image de l’architecture vendéenne citée précédemment, l’utilisation de deux matériaux constructifs soutenables est mise en avant. Le socle et les murs de rez-de-chaussée s’établissent sur une construction en pisé (terre banchée) tandis que les étages, concernés par une certaine nécessité de flexibilité s’établissent sur une ossature bois (cf. légende plus bas).
Nous assumons cette partie indéfinie du projet dans le sens où elle permettra une plus grande diversité tant dans ses usages et ses pratiques que dans son esthétique, donnant une véritable identité au quartier.
Le socle des logements, saillant au sud, est le support de jardins individuels
et abrite en son épaisseur les cabanons de jardinage.
La dernière séquence est celle qui va lier le projet à son territoire.
Elle se divise en deux parties distinctes au point de vue formel et usuel :
- A l’ouest se trouve une série de jardins collectifs en restanques, accessibles depuis le chemin public. Ils s’établissent comme espace collectif à la fois ludique et utile.L’irrigation des cultures est assurée par la récuperation
des eaux pluviales.
- La plaine est conservée en partie sud-est, proposant un espace naturel dans lequel viennent s’établir les bassins de lagunage. Ces bassins permettent d’une part de stocker les eaux pluviales, mais aussi et surtout un assainissement naturel des eaux usées.

























