Running on
Cargo
Projets
Collaborations
Tout Va Bien ?
ASF-France
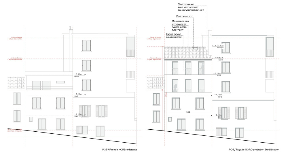
SURELEVATION SAM
Surélévation d’un immeuble / Marseille.
Avant-Projet en cours